Banner
StartseiteRathaus & PolitikStadtverwaltungStadtbauamtAktuelles aus dem BauamtBekanntmachung über die frühzeitige Öffentlichkeitsbeteiligung zum Vorhabenbezogenen Bebauungsplan IG 7.1 (Wohngemeinschaft für Demenzerkrankte)
 

Bekanntmachung über die frühzeitige Öffentlichkeitsbeteiligung zum Vorhabenbezogenen Bebauungsplan IG 7.1 (Wohngemeinschaft für Demenzerkrankte)

Bekanntmachung
über die frühzeitige Öffentlichkeitsbeteiligung 
gemäß § 13 a i.V.m. § 3 Abs. 1 BauGB
Vorhabenbezogener Bebauungsplan IG 7.1 
- Wohngemeinschaft für Demenzerkrankte - 

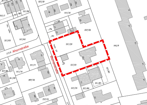
Auf den, aus dem beiliegenden Lageplan ersichtlichen Grundstücken in der Blumenstraße, beabsichtigt die Germeringer Sozialstiftung eine Wohngemeinschaft für Demenzerkrankte zu errichten.

Vorgesehen ist ein „L-förmig“ angeordneter Baukörper.  Der kürzere Schenkel des Baukörpers soll III Vollgeschosse, der längere Baukörper II Vollgeschosse aufweisen. In dem Gebäude sollen auf zwei Etagen jeweils 10 – 12 Zimmer für Menschen mit Demenz untergebracht werden. Zusätzlich werden Gemeinschaftsräume, wie Gymnastikräume, Aufenthaltsbereiche und Therapieräume vorgesehen. 

Die Germeringer Sozialstiftung hat hierzu die Aufstellung eines Vorhabenbezogenen Bebauungsplanes gemäß § 12 BauGB beantragt.

Der Stadtrat hat in seiner Sitzung am 21.10.2025 dem Antrag der Germeringer Sozialstiftung auf Aufstellung eines Vorhabenbezogenen Bebauungsplanes zugestimmt und den Aufstellungsbeschluss für den Bebauungsplan: „Vorhabenbezogener Bebauungsplan IG 7.1 – Wohngemeinschaft für Demenzerkrankte“ gefasst.

In der Sitzung des Planungs- und Bauausschusses am 03.03.2026 wurde der Bebauungsplanvorentwurf in der Fassung vom 21.10.2025  befürwortet und der Beschluss zur frühzeitigen Öffentlichkeitsbeteiligung gefasst (§ 3 Abs. 1 BauGB).

Der Vorhabenbezogene Bebauungsplan in der Fassung vom 21.10.2025 mit Begründung kann in der Zeit vom

Mittwoch, den 29.04.2026 bis einschließlich Freitag, den 29.05.2026

im Rathaus der Stadt Germering, Rathausplatz 1, im Eingangsbereich eingesehen werden.
Die Planungsunterlagen können Sie auch digital in der nachfolgenden Downloadliste einsehen.

Anregungen können innerhalb der Auslegungsfrist vorgebracht werden. Diese werden überprüft und fließen sodann in das weitere Bauleitplanverfahren ein. Eine Entscheidung zu den Äußerungen wird durch das zuständige Gremium getroffen. 
Nicht fristgerecht abgegebene Stellungnahmen können bei der Beschlussfassung zum Bebauungsplan unberücksichtigt bleiben. 

Für Auskünfte, Einzelerörterungen und Vorbringen von Anregungen zur Planung steht das Bauamt der Stadt Germering, 4.Stock des Rathauses, während der Dienststunden: Montag mit Freitag 8.00 Uhr bis 12.00 Uhr sowie Montag, 14.00 bis 18.00 Uhr, zu Verfügung. 
Es wird um vorherige telefonische Terminvereinbarung unter der Telefon-Nummer: 089/ 89419-413/-412 oder per E-Mail unter bauamt@germering.bayern.de  gebeten. Die Termine zur Einsicht können auch außerhalb der o.g. Zeiten vereinbart werden. 

Germering, den 22.04.2026                          

Andreas Haas
Oberbürgermeister

Bekanntmachungsvermerk:
Veröffentlicht an der Amtstafel vor dem Rathaus Germering 
am 29.04.2024
Zur Information an alle Amtstafeln
angeheftet am:      29.04.2024
abgenommen am: 29.05.2024          


Nachfolgend finden Sie die o.g. Bebauungsplan-Unterlagen:

Wichtige Informationen der Stadt

Laden Sie sich die Germering-App herunter und bleiben Sie bestens informiert über, das was in unserer Stadt passiert!

Sie bietet:

  • Tägliche News und wichtige Mitteilungen aus dem Rathaus
  • Veranstaltungshinweise aus den Bereichen Kultur, Sport, Wirtschaft & Vereine
  • Push-Benachrichtigungen zu ausgewählten Themenbereichen
  • Einen Veranstaltungskalender 
  • Infos zur MVG-Mobilitäts-App, Abfuhrkalender des AWB, Ärzte- und Apotheken-Verzeichnis und vieles mehr. 

Die Germering-App basiert auf der Plattform Heimat-Info und ist kostenfrei in den gängigen App-Stores erhältlich. 

Hier klicken für Play Store (Android z.B. Samsung)

Hier klicken für App Store (Apple iOS z.B. iPhone)

Neben der mobilen Anwendung können sämtliche Informationen auch über die Webseite www.heimat-info.de abgerufen werden.

VOILA_REP_ID=C1258049:0036AC6A